Chiusini a pavimento

Serie Visedge

Telaio e vasca in alluminio

Richiedi offerta

Configura la tua botola personalizzata

Su richiesta realizziamo botole d'ispezione di qualsiasi dimensione, entro i limiti produttivi.

Configura ora

Area documentazione

Scopri la documentazione completa

Accedi all'Academy

Informazioni di prodotto

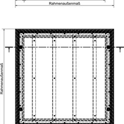
Il chiusino a pavimento serie Visedge è realizzato con profilo in alluminio.

L'altezza di installazione è di soli 50 mm.

Lo spessore del riempimento consigliato è max 3 mm.

Il chiusino è dotato di tre guarnizioni speciali lungo tutto il perimetro.

Il telaio viene fissato tramite gettata al livello del pavimento.

Il coperchio viene fissato al telaio tramite 4 viti di serraggio e con apposite chiavi di sollevamento può essere rimosso. 

Il riempimento della vasca è possibile con vinile, Linoleum, moquet e altri materiali elastici. 

Per condotti a pavimento interni

- con tre guarnizioni speciali

- una volta installato è quasi invisibile

- facile da aprire grazie al design conico

- Tempistiche di produzione brevi

- Produzione interna

Configura il tuo prodotto personalizzato

Misure lato apertura: 1 mm - 4000 mm Misure lato opposto: 1 mm - 4000 mm

Serie Visedge alluminio

Telaio e vasca in alluminio

Quantità configurazione

Richiedi un'offerta per questa configurazione