Chiusini a pavimento

Serie HSE75 Alluminio

Telaio e vasca in alluminio

Richiedi offerta

Configura la tua botola personalizzata

Su richiesta realizziamo botole d'ispezione di qualsiasi dimensione, entro i limiti produttivi.

Configura ora

Area documentazione

Scopri la documentazione completa

Accedi all'Academy

Informazioni di prodotto

Il chiusino a pavimento Serie HSE75 è realizzato in alluminio.

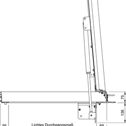
La profondità della vasca è di 62 mm e l'altezza di installazione è di 78mm.

Il chiusino è dotato di tre guarnizioni speciali lungo tutto il perimetro. 

Il telaio viene fissato tramite gettata a livello del pavimento. 

Successivamente la vasca può essere riempita ed inserita nel telaio e possono essere montati i pistoni. 

L'apertura è sostenuta da due pistoni a gas che permettono cosi l'apertura e la chiusura da una sola persona. 

La sicurezza è garantita da un dispositivo anticaduta. 

Il riempimento della vasca è possibile con pavimentazione in pietra, piastrelle, cemento, resina, granito, legno e pavimenti duri o altri materiali. 

Per condotti a pavimento sia per interni che esterni

- con tre guarnizioni speciali

- una volta installato è quasi invisibile

- Apertura e chiusura servoassistita

- Termpistiche di produzione brevi

- Produzione interna

- Possibilità di avere doppio sportello

Configura il tuo prodotto personalizzato

Misure lato apertura: 1 mm - 9999 mm Misure lato opposto: 1 mm - 9999 mm

Serie HSE75 Alluminio

Telaio e vasca in alluminio

Quantità configurazione

Richiedi un'offerta per questa configurazione