A filo pavimento

Serie 5000 multisportello- Chiusino d'ispezione - Alluminio

Telaio e vasca in alluminio

Richiedi offerta

Configura la tua botola personalizzata

Su richiesta realizziamo botole d'ispezione di qualsiasi dimensione, entro i limiti produttivi.

Configura ora

Area documentazione

Informazioni di prodotto

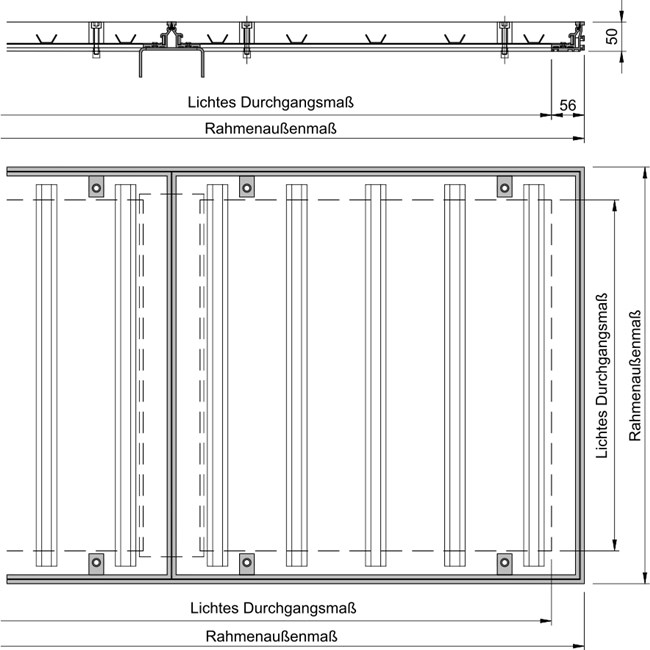
Il chiusino d'ispezione a pavimento serie 5000 multisportello è realizzato in alluminio. 

La profondità della vasca è di 37 mm e l'altezza d'installazione è di soli 50 mm. 

Il chiusino è dotato di tre guarnizioni speciali lungo tutto il perimetro. 

Il telaio viene fissato tramite gettata a livello del pavimento. 

Successivamente la vasca può essere riempita ed inserita nel telaio. 

Il coperchio viene fissato al telaio tramite 4 viti di serraggio e con apposite chiavi di sollevamento può essere rimosso. 

Il riempimento della vasca è possibile con piastrelle, cemento, resina, granito, autobloccanti, legno e pavimenti duri o altri materiali. 

Per condotti di pavimento sia interni che esterni

- con 3 guarnizioni speciali

- una volta installato è quasi invisibile

- facile da aprire grazie al design conico

- tempistiche di produzione brevi

- produzione interna

Configura il tuo prodotto personalizzato

Misure lato apertura: 1 mm - 9998 mm Misure lato opposto: 1 mm - 9998 mm

Serie 5000 multisportello Alluminio

Telaio e vasca in alluminio

Quantità configurazione

Richiedi un'offerta per questa configurazione